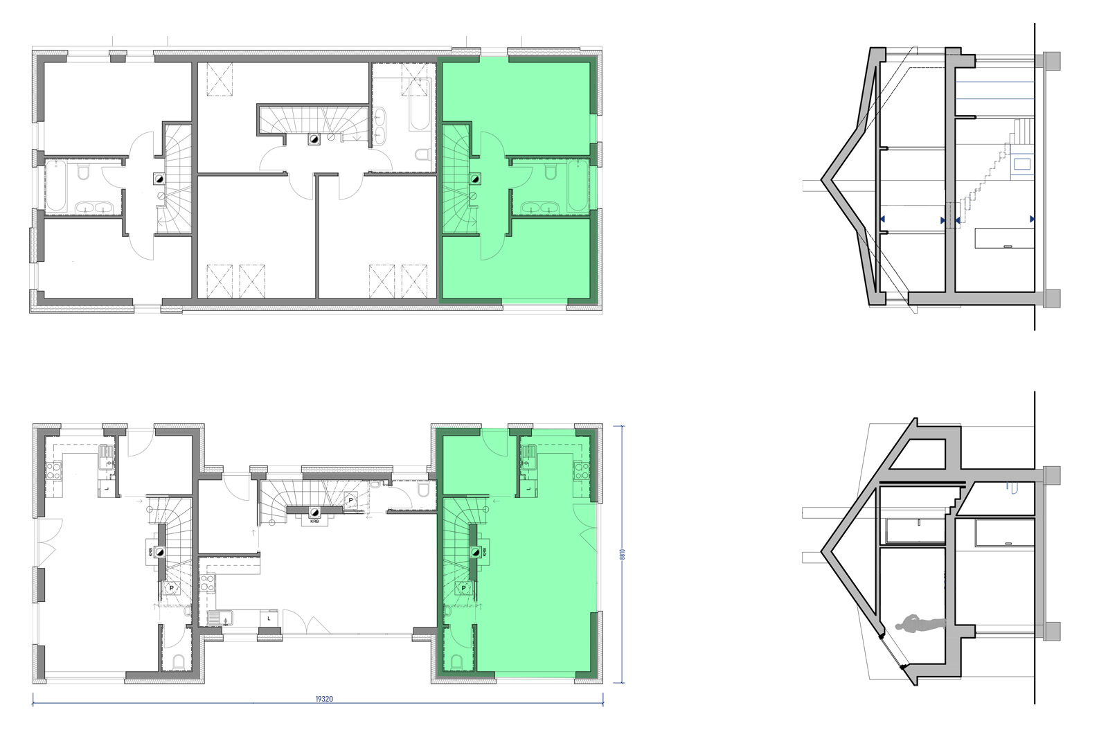
Dům B - Byt B03
Jednogenerační bytová jednotka v domě se třemi byty, dvojpodlažní, se vstupem a obytným prostorem na úrovní l.NP. Byt má samostatný hlavní vstup ze společných venkovních prostor a samostatný vstup na zahradu z obytného prostoru. Každý byt má vlastní zahrádku. Dispozice každého bytu jsou pečlivě promyšleny. Při návrhu byl důraz kladen na soukromí a prosvětlený interiér. Byt je akusticky oddělen od sousedních bytů. Hlavní obytné podlaží obsahuje vstup se šatnou, otevřený obytný prostor s kuchyní, jídelnou, obývákem a krbem, a dále samostatné WC a technickou místnost. Ve 2.NP je ložnice, dětský pokoj a koupelna. K dispozici jsou dvě parkovací stání, jedno z těchto stání je řešeno jako dodatečné na nezpevněné ploše (kačírek). Velikost bytové jednotky je 74,7 m².
Obytný prostor
Zádveří
WC
Technická místnost
Ložnice
Pokoj
Koupelna
Chodba
Bytová jednotka celkem
Velikost zahrady
Cena s DPH
28,1 m²
5,1 m²
1,6 m²
4,6 m²
14,6 m²
12,5 m²
5,2 m²
3,0 m²
74,7 m²
398,0 m²
3 994 896,- Kč





