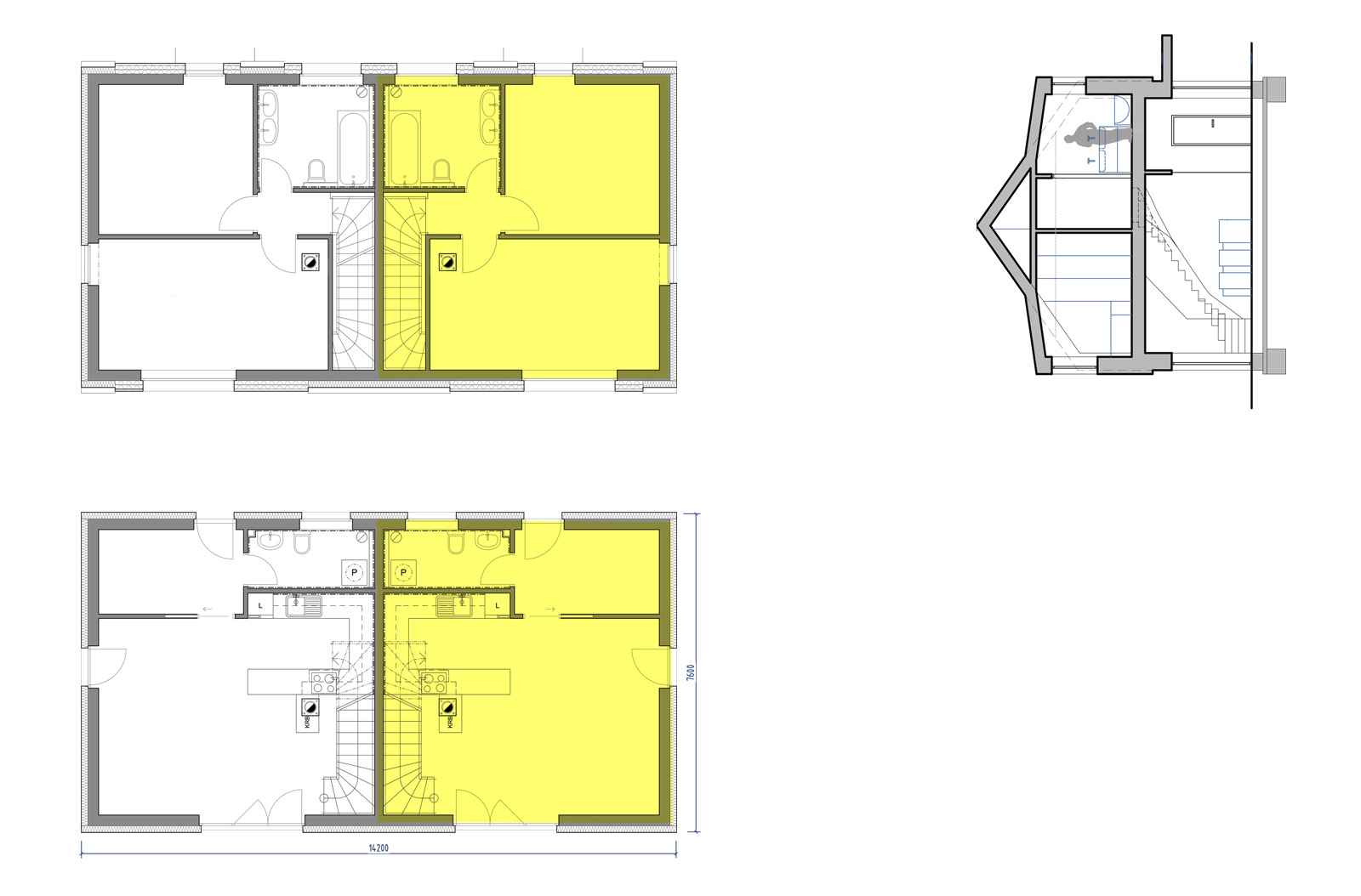
Dům D - Byt D02
Jednogenerační bytová jednotka v domě se dvěma byty, dvojpodlažní, se vstupem a obytným prostorem na úrovní l.NP. Byt má samostatný hlavní vstup ze společných venkovních prostor a samostatný vstup na zahradu z obytného prostoru. Každý byt má vlastní zahrádku. Dispozice každého bytu jsou pečlivě promyšleny. Při návrhu byl důraz kladen na soukromí a prosvětlený interiér. Byt je akusticky oddělen od sousedních bytů. Hlavní obytné podlaží obsahuje vstup se šatnou, otevřený obytný prostor s kuchyní, jídelnou a obývákem, WC s technickou místností. Ve 2.NP je ložnice, dětský pokoj a koupelna. K dispozici jsou dvě parkovací stání. Velikost bytové jednotky je 82,0 m².
Obytný prostor
Zádveří + Šatna
WC + Technická místnost
Ložnice
Pokoj
Koupelna
Chodba
Bytová jednotka celkem
Velikost zahrady
Cena s DPH
32,0 m²
7,0 m²
4,2 m²
13,2 m²
16,9 m²
6,8 m²
1,9 m²
82,0 m²
411,0 m²
4 312 200,- Kč





