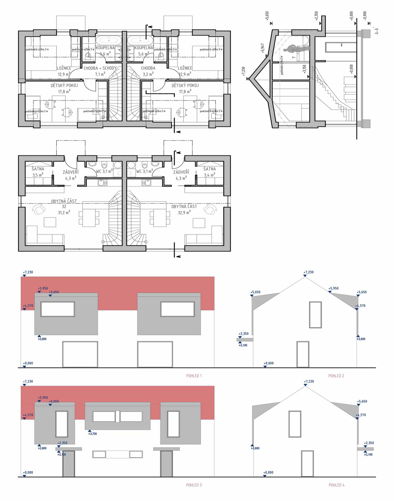
Bytový dům E - Dům se dvěma byty
Bytový dům se dvěma byty obsahuje dvě bytové jednotky o dispozici 3+kk. Zastavěná plocha rodinného domu se třemi byty je 107,9 m², velikost bytové jednotky je 82,0 m². Bytový dům se třemi byty obsahuje obytný prostor s kuchyňským koutem, zádveří, WC + pračka + úklidová komora, ložnice, pokoj, koupelna, chodba + schody.

